アネシス茶屋ヶ坂
名古屋市の住宅街に建つ新たな価値を創出する木質ハイブリッド集合住宅。木の温もりに包まれた住まいの実現に向けて木と鉄筋コンクリートの特性を活かした木質ハイブリッド構造を採用した。当社開発の「スリム耐火ウッド」の木柱・木梁、及びCLT 耐震壁(ハイウッドウォール)、RC-CLT合成床(ハイウッドスラブ)を活用した他、内外装仕上材も積極的に木質化を図った。


所在地 | 愛知県名古屋市 |
---|---|
竣工年 | 2020年 |
建築主 | 清水建設株式会社 |
主用途 | 共同住宅 |
階数 | 地下1階・地上4階 |
主構造/耐火性能 | RC造、木造/耐火構造 |
延床面積 | 約3,200m2 |
木材使用量/CO2固定量 | 220m3(0.069m3/m2)/140t-CO2 |
「シミズ ハイウッド」 木質ハイブリッド技術 |
・スリム耐火ウッド柱・梁(1時間耐火) ・ハイウッドジョイント ・ハイウッドスラブ ・ハイウッドウォール |
シミズの木質建築技術「シミズ ハイウッド」
木と鉄筋コンクリートを適材適所に配慮し建築の木質化を図るシミズの木質建築技術「シミズ ハイウッド」を採用。共同住宅に求められる耐火性、遮音性を鉄筋コンクリートで担保しながら、居住空間には木質部材を採用し、木に包まれた快適な空間を実現した。木質構造の柱、梁には、国土交通大臣認定を取得した耐火木質部材「スリム耐火ウッド」を採用。耐火シートと強化石膏ボードを二重に組み合わせて燃え止まり層を形成、高い耐火性能を確保しつつ耐火材料部の層厚を抑えることで、広々とした空間を実現した。性能評価機関の耐火試験で、木質柱の1、2時間性能を確認し、大臣認定を取得している。


木を感じられる外観計画
バルコニー、外廊下側の南北面を木質構造とし、外観からも木質構造が感じられる構成とした。2住戸からなる住戸ユニットが、設備機器・配管を集約したメカニカルコアを挟み込む計画とすることでスケルトン・インフィルを実現し、将来更新性を向上させた。


木の温かさを感じられる住まい
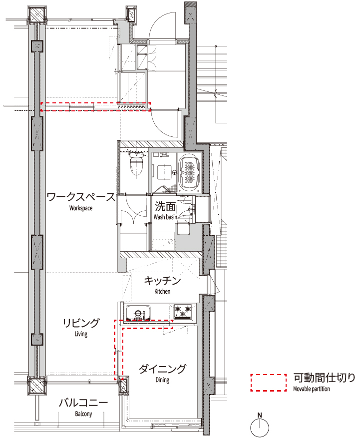
長い年月の中で起こり得る居住者のライフステージの変化に対して、追従可能で機能的であり続ける住宅を目指し、可動間仕切りや家具によって設えを調整可能な住戸プランとした。周辺環境への寄与や居住者の健康性・快適性の向上に向けて、木質バルコニーや妻の木化粧壁など、外装材も積極的な木質化により木の温かみと開放感を持った住戸を実現した。



木質ハイブリッド構造の採用や環境配慮技術の導入による地球環境負荷の低減
1階に設置したテレワークルームは、多様な働き方の場を提供すると共に、発災時にはBCP サブ拠点としても機能する。天井はRC-CLT合成床(ハイウッドスラブ)を採用し、木を感じられる快適なワークスペースとした。アースチューブや太陽光集熱パネルを導入し、環境負荷の低減も実現している。国産材を多用したこの木質ハイブリッド集合住宅が、森林資源の循環、持続可能な社会をつくり出している。




日本建築学会作品選集 2022 令和4年度日事連建築賞(2022)/優秀賞(一般建築部門) 第16回愛知県建築士事務所協会 愛知建築賞(2022)/優秀賞 JIA優秀建築選 2021 グッドデザイン賞 2021 令和3年度木材利用優良施設コンクール(2021)/木材利用推進中央協議会会長賞 第24回木材活用コンクール(2021)/第1部門賞 ウッドデザイン賞 2021 日本空間デザイン賞 2021 第53回中部建築賞(2021) 第28回愛知まちなみ建築賞(2020) T-1グランプリ 2020 平成30年度サステナブル建築物等先導事業(木造先導型)採択